Appartamento al Piano terra con terrazzo in Via Fiorentina, Siena.

Siena | 255.000,00 | Mq 120 | 4 | 2 | 2

Descrizione

Immobiliare Siena Progetti propone questa interessante soluzione abitativa di circa 120 Mq. in Via Fiorentina a Siena.
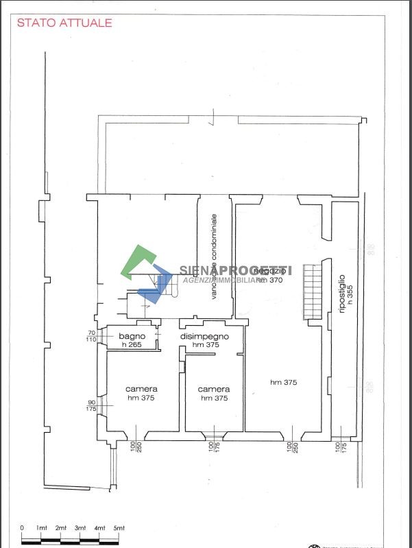
Lo stato di progetto prevede l’accorpamento di un bilocale ad uso abitativo e di un negozio, per il quale la Proprietà sta predisponendo il cambio di destinazione d’uso in civile abitazione.
L’appartamento che ne deriva, posto al Piano terreno di una palazzina di due Piani, dove si trovano altre tre unità immobiliari, sarà composto da una ampia zona soggiorno, una cucina, due camere da letto, due bagni ed un grande terrazzo di circa 60 mq.
Faranno parte della vendita anche un magazzino di circa 12 Mq. ed un posto auto in area condominiale, posti in un’area sottostante l’appartamento, con accesso da Via A. Sclavo.
L’immobile verrà venduto con il cambio di destinazione del negozio a carico della Proprietà, mentre saranno a carico dell’acquirente i progetti ed i relativi lavori di ristrutturazione.
Da sottolineare l’ottima soluzione abitativa derivante da questa trasformazione, sia per la posizione strategica, vicina alla Città ed a tutti i principali servizi e per il grande terrazzo panoramico.
Per maggiori informazioni chiedi in Agenzia.

Dettagli

  • Riferimento: 294
  • Tipologia: Appartamento
  • Comune: Siena
  • Zona:
  • Cucina: Cucina abitabile
  • Camere: 2
  • Bagni: 2
  • Box: Nessuno
  • Piano: Terra
  • Anno costruzione:
  • Stato conservazione: Da ristrutturare
  • Stato: Occupato Proprietario
  • Spese cond. annue €:
  • Riscaldamento:
  • Caratteristiche

    Terrazzi 60 mq

    Efficienza energetica

    Classe G

    Prestazione energetica del fabbricato inverno estate

    Via Fiorentina Siena

    Richiedi informazioni

    Pietro 335 6303165

    Paolo  335 6303169

    Ai sensi e per gli effetti degli articoli 13 e 6 del Regolamento UE 2016/679, dichiaro di aver preso visione dell’informativa di Immobiliare Siena Progetti di Bazzani Pietro per il trattamento dei dati personali.

    Immobiliare Siena Progetti

    Via del Giglio, 7/9 - Siena - Tel 335 6303165


    Appartamento al Piano terra con terrazzo in Via Fiorentina, Siena.

    255.000,00 | Mq 120 | 4 | 2 | 2

    Via Fiorentina Siena

    Immobiliare Siena Progetti propone questa interessante soluzione abitativa di circa 120 Mq. in Via Fiorentina a Siena.
    Lo stato di progetto prevede l’accorpamento di un bilocale ad uso abitativo e di un negozio, per il quale la Proprietà sta predisponendo il cambio di destinazione d’uso in civile abitazione.
    L’appartamento che ne deriva, posto al Piano terreno di una palazzina di due Piani, dove si trovano altre tre unità immobiliari, sarà composto da una ampia zona soggiorno, una cucina, due camere da letto, due bagni ed un grande terrazzo di circa 60 mq.
    Faranno parte della vendita anche un magazzino di circa 12 Mq. ed un posto auto in area condominiale, posti in un’area sottostante l’appartamento, con accesso da Via A. Sclavo.
    L’immobile verrà venduto con il cambio di destinazione del negozio a carico della Proprietà, mentre saranno a carico dell’acquirente i progetti ed i relativi lavori di ristrutturazione.
    Da sottolineare l’ottima soluzione abitativa derivante da questa trasformazione, sia per la posizione strategica, vicina alla Città ed a tutti i principali servizi e per il grande terrazzo panoramico.
    Per maggiori informazioni chiedi in Agenzia.

    Riferimento: 294

    Tipologia: Appartamento

    Comune: Siena

    Zona:

    Cucina: Cucina abitabile

    Camere: 2

    Bagni: 2

    Box: Nessuno

    Piano: Terra

    Anno costruzione:

    Stato conservazione: Da ristrutturare

    Stato: Occupato Proprietario

    Spese cond. annue €:

    Riscaldamento:

    Terrazzi 60 mq

    Efficienza energetica
    Classe G
    Prestazione energetica del fabbricato inverno estate